
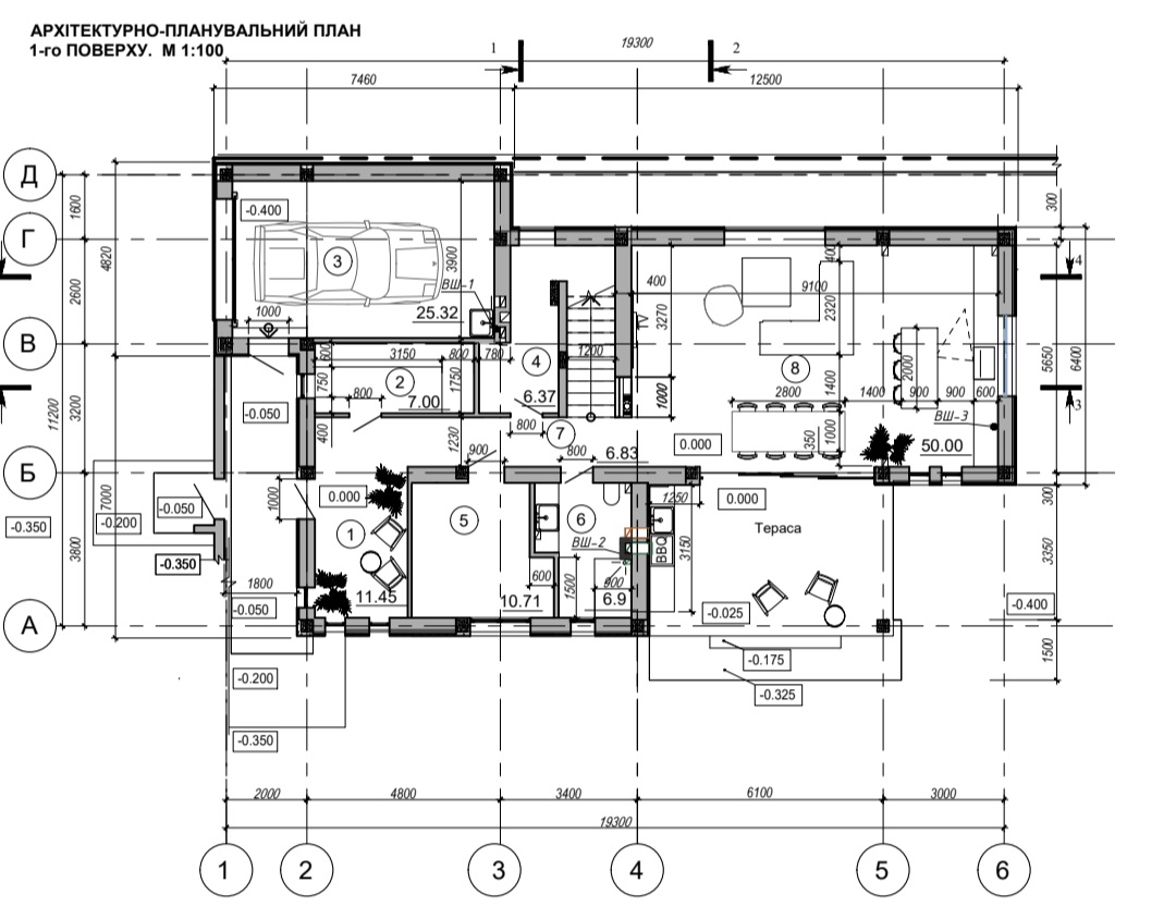
2-х поверховий будинок у Совіньйоні, площею – 265 кв.м. , розташований на ділянці кутовим площею – 4,5 сотки.
У будинку: 4 спальні, кухня-студія, 3 санвузли, вбиральня, гараж. Басейн (залита бетонна чаша). Існує дизайнерський проект внутрішнього оформлення будинку, який буде бонусом для покупця.
Побудований з газобетону, внутрішні стіни з червоної цегли.